E-mail: ventas@gidi-chain.com

Cadena de acero inoxidable C2082HP para tratamiento de agua

2020-07-01 13:38:41

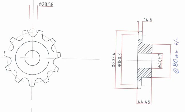
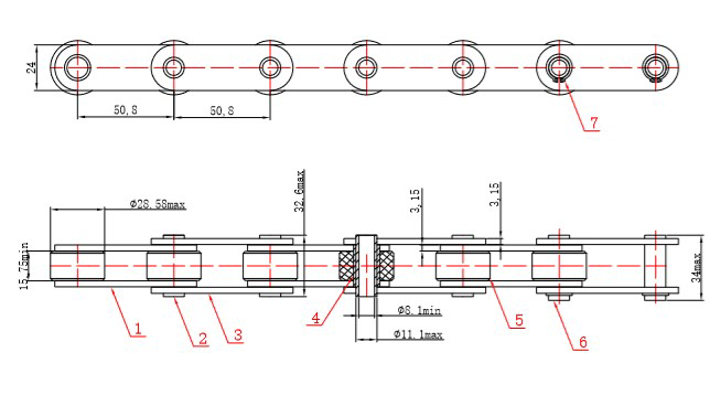
La cadena de acero inoxidable tiene un buen rendimiento anticorrosivo y a menudo se usa en diversos equipos de transporte en entornos acuáticos. Pasador hueco C2082HP cadena de acero inoxidable use material de acero inoxidable 316SUS. El rodillo usa material de nylon blanco. Se utiliza para el proyecto de tratamiento de agua en Noruega. La rueda dentada combinada es C2082HP-Z17 y C2082HP-Z11. Están compuestos para usar para el tratamiento de agua con buen efecto. dibujos en cadena para estos tres artículos.

图片 1.png

图片 2.png

图片 3.png

GIDI CHAIN ​​LIMITED suministrar muchos cadena de rodillos, cadena transportadora, Cadena de la hoja, cadena soldada, cadena forjada, Cadena de molino de aceite de palma, Cadena de elevación,Cadena de minas y metalurgia, etc. totalizando sobre variedades 3000. y 90% de las cadenas se exportan a todo el mundo, que exportan principalmente al sudeste de Asia, Europa, América del Norte y América del Sur. Las cadenas son bienvenidas por los clientes con la excelente calidad. Nuestra empresa posee más de 100 conjuntos de equipos de fabricación avanzados y profesionales. El sistema de control de calidad perfecto y riguroso se implementa en todos los procesos, desde la compra de materiales hasta el embalaje de productos terminados. Además, hemos aprobado la certificación ISO9001: 2015 Quality Management System.

Mas detalle : www.gidi-chain.com


Productos Relacionados